三重県津市|ビーイング様本社ビルの擬岩ロックワーク施工事例
津市
企業の顔となる空間に「左官美学の造形力」と「セメントの持つ美学」を。
三重県津市で行われたビーイング本社ビルの耐震・改修工事。その1階受付ロビーにて、当社は擬岩ロックワークを施工しました。
セメントという基礎素材に、左官職人の美学を重ねることで、企業を象徴するロビーに格調と独創性を与えています。
ご依頼の背景と設計意図
社会的価値と美意識を体現するオフィスリニューアル。
ビーイング様は、企業価値向上や人材採用力強化を目的に、本社ビルを全面改修。
SDGsやダイバーシティの観点からも、来訪者や社員を迎えるロビーには象徴性が求められました。
設計を担当したフロンティアコンサルティング様のプランにおいても、「既製品では表現できない質感」を叶えるため、モルタル造形が採用されました。
セメントの持つ美学と、その価値向上
無機質な素材を、空間の象徴へと昇華させる。
セメントは建築に欠かせない基礎素材ですが、単調で無機質と捉えられることもあります。
当社は左官技術によって、その中に「セメントの持つ美学」を見出しました。
凹凸や割れ目を彫り込み、多層塗装を施すことで、素材本来の力強さを引き出し、単なる建材を超えた存在感を創出しました。
こうしてセメントの価値を高め、空間全体に格調を与えることが可能になります。
左官美学の造形力
思想を宿した職人技が、空間を芸術へと変える。
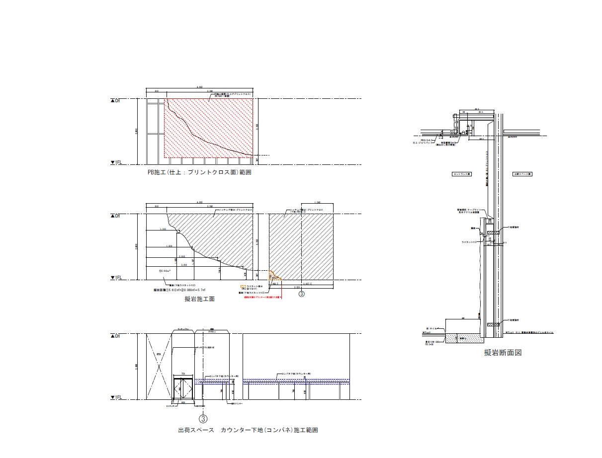
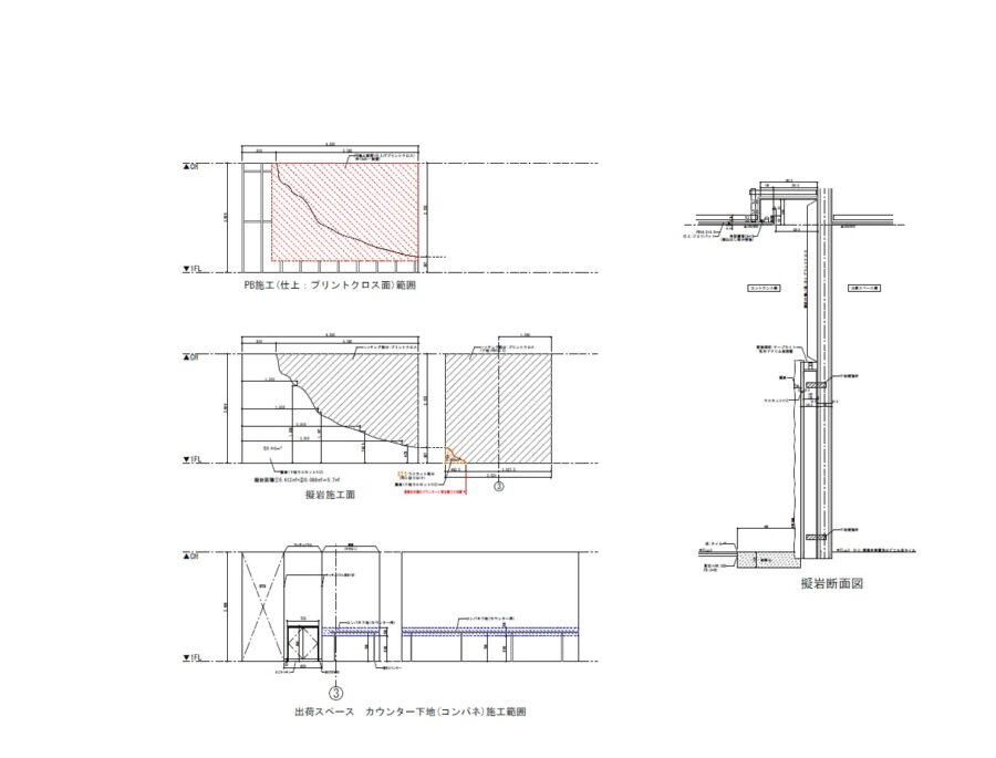
当社の職人は、下地工法の選定から現場での微調整まで一貫対応しました。
設計者や依頼主の要望を即興で反映し、光の当たり方によって表情が変わる造形を完成させました。これは単なる施工ではなく、「左官美学の造形力」を体現した作品です。
職人コメント:「設計者や依頼主の声をその場で反映し、光と陰影が生む表情を意識しました。空間全体に調和しながらも、印象に残る存在感を持たせています。」
完成後の評価
取締役・創業会長様も驚嘆。「本物の岩かと思った」との声。
完成後、ビーイング取締役様や創業会長様からは「圧巻だった」「本物の岩と見紛うほど」と高い評価をいただきました。
企業の象徴にふさわしいロビーが完成し、来訪者にも強い印象を与えています。
この事例の意義と応用可能性
企業ロビーから公共施設・邸宅まで、幅広く展開できる技術。
- 企業ロビーや役員フロアの意匠デザインに
- 商業施設・ホテル・レストランのファサード演出に
- 邸宅や別荘のラグジュアリー空間づくりに
いずれも「既製品では実現できない造形美学」を追求する場面で力を発揮します。
まとめ
セメントと左官美学の融合が、空間を新たな次元へと導く。
セメントの持つ美学を引き出し、左官美学の造形力で形にすることで、空間は単なる建築要素を超え、企業やオーナーの思想を映す象徴へと変わります。
ご相談はぜひお気軽に。LINEから図面や資料を送っていただければ、スムーズにご提案可能です。
この記事は、株式会社メイク・プラスター(本社:三重県鈴鹿市)の左官職人による実施工事例をもとに作成しています。
会社情報:会社概要はこちら
TEL:059-373-4900





