四日市市 外構リフォーム|腐った枕木を“燃えない木”へ、スタンプコンクリートで再生する庭
四日市市
今回は「腐った枕木をどうにかしたい」というお悩みから始まった、四日市市の外構リフォームをご紹介します。
天然の枕木が腐って歩けない。芝が伸びて荒れてしまった。孫と遊べる安全な庭にしたい。
そんな想いを、スタンプコンクリート木目柄で叶えました。
腐った枕木の庭。危険と不便から始まった外構リフォーム
お施主様のご相談内容は、まさに生活の危険と直結していました。
工事前の様子。天然枕木が腐り、芝と雑草が混ざった状態。
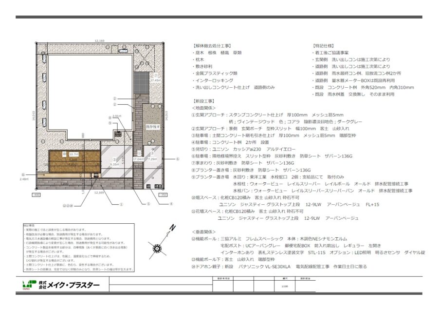
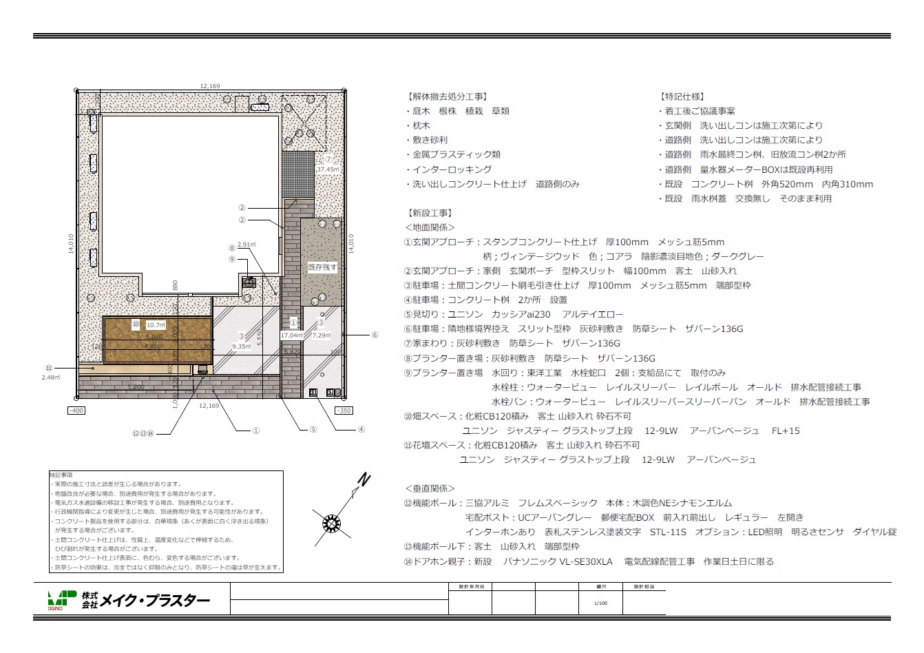
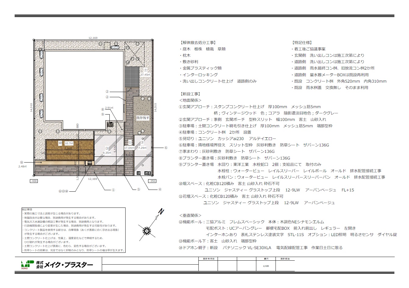
新築時に設計された天然枕木のアプローチが腐り、歩行時に沈み、段差もできてしまっていました。
枕木の間に植えられた芝は暴れ、雑草と混ざって管理不能に。庭全体がぬかるみやすく、見た目も乱雑な状態に。
“生活不便”を生んでいました。
「歩くのも危ない」「孫が転ぶ」「見た目も気になる」――この声からリフォーム計画が始まりました。
燃えない木。スタンプコンクリート木目柄という選択
メイクプラスターがご提案したのは、スタンプコンクリート木目柄。
木の温もりをそのままに、腐らない。燃えない。反らない素材です。
表面の木目模様は、専用マットで職人が一枚ずつ型押しするため、自然な木肌と立体感が生まれます。
施工中。木目模様を一枚ずつ丁寧に型押し。
スタンプ木目は、単なる見た目だけでなく、構造そのものが一体化しています。
- 反りや段差が生まれない。
- 腐らない。燃えない。シロアリに強い。
- 目地がないので雑草も生えない。
天然木の味わいを残したいけど、腐るのはもう嫌。そんな方に最適な素材です。
▶ 木目の実物は、展示場で直接ご覧いただけます。
展示場のご案内はこちら
駐車場と庭を一体化。動線と美観を両立するデザイン
今回の設計では、駐車場・アプローチ・庭を一体化。
家族が車を降りてから玄関に入るまでの動線を、まっすぐ、安全、美しく整えました。
デザインと実用性を両立した、生活動線の再構築です。
雑草も、危険も、手間もゼロ。暮らしが変わる安心の庭
施工後、お施主様から「孫が裸足で遊べるようになった」「掃除が楽になった」とのお声をいただきました。
木目の溝が滑り止めにもなり、雨の日も安心。
メンテナンスの手間もほとんどなく、季節を問わず快適に過ごせる庭になりました。
▶ 「腐った枕木を直したい」「もう草取りをしたくない」
そんな方は、まず現地でのご相談をおすすめします。
無料相談はこちらから
木目枕木デザインの他事例を見る
木目スタンプデザインにはさまざまな表現があります。素材・色・配置によって、印象が大きく変わります。
スタンプ木目の柔らかさと耐久性を、ぜひ見比べてください。
腐る枕木のリフォームは、構造から考える時代へ
天然木は美しいですが、構造としては必ず終わりが来ます。
しかしコンクリート木目なら、燃えず、腐らず、剥がれない。10年後も変わらない一体美を保ちます。
▶ 実際の木目コンクリートを見て触れて、違いを確かめてください。
展示場のご案内はこちら
四日市市・鈴鹿市・亀山市を中心に、外構リフォーム・庭のコンクリート施工を承っています。
腐る前に、燃えない木で暮らしを変えましょう。











































